Avalon

Avalon

Avalon

Avalon

Avalon

Project Information

Client

Smart Golds Company

Description

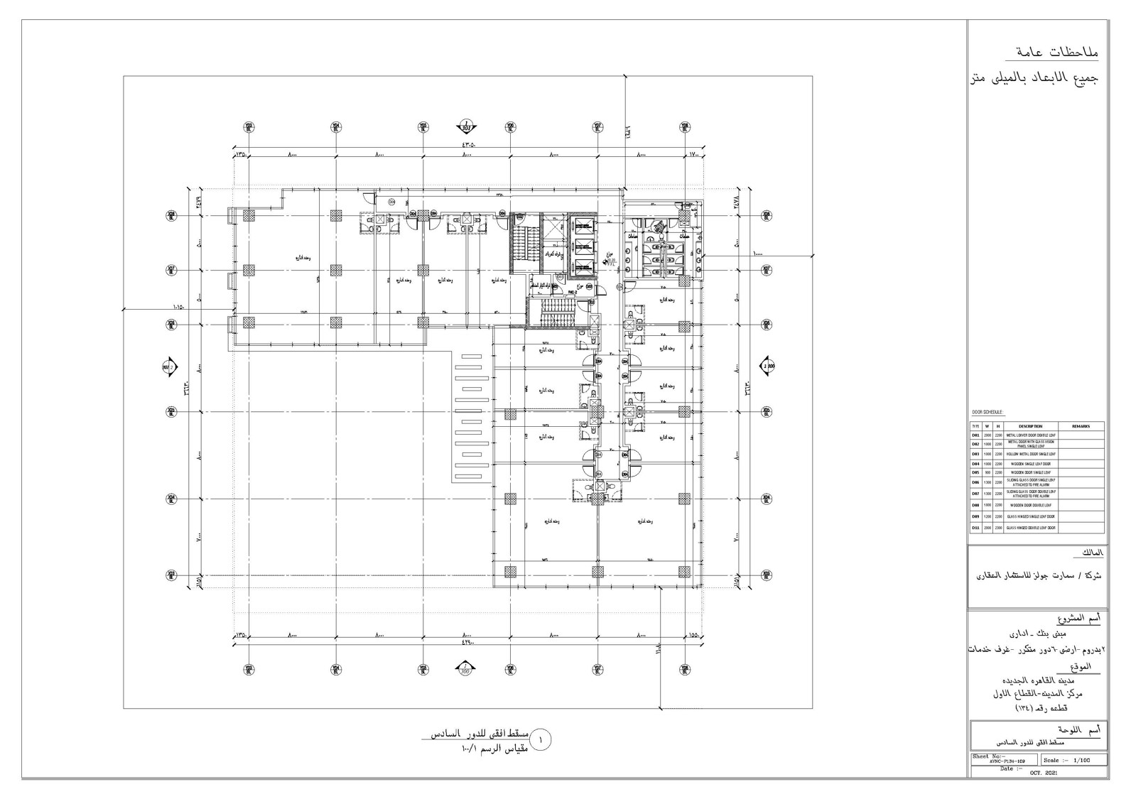
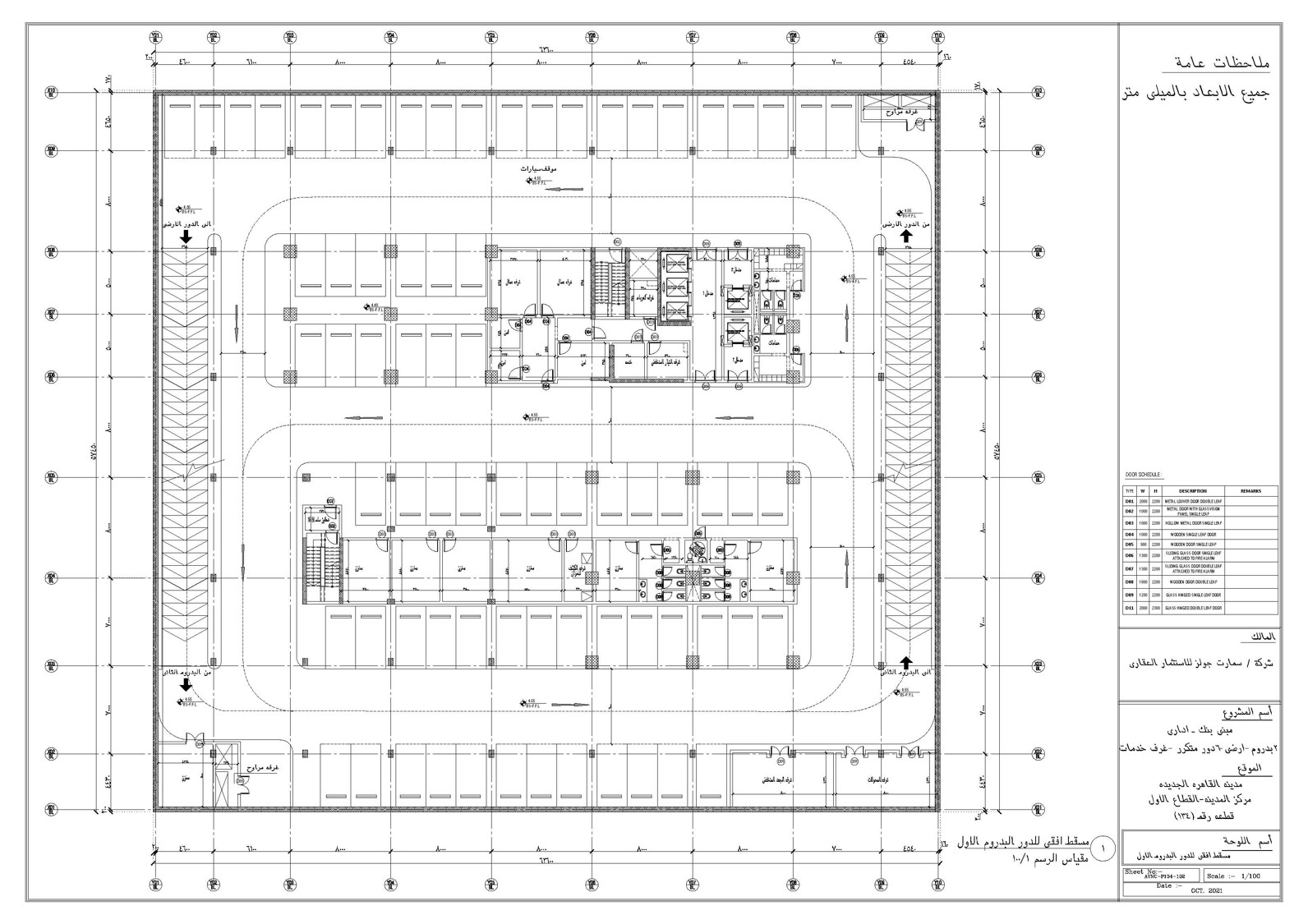
AVALON Project located in, Cairo, Egypt. Total area 84000 m2, works shall cover all displaces.
It consisted two Basement for parking, Ground (shops , coffee shop, bank and restaurant) , 6 Floors ( offices area)

Project Location

New Cairo

Date

2022